(05066) 70 44 0

Deutsch 

<<   23.-25.09.2025 Efa:on Leipzig (https://www.efa-on.de/de/) Halle 3 Stand F02 mehr/more >>

Home
  • Produkte
    • Produkte
    • Zählerschränke
    • Wandlerschränke
    • Zählerwandlerschränke
    • Standverteiler
    • Außenverteiler
    • Zubehör
  • Qualität
  • Ausstellungen/Messen
  • Karriere
  • Kontakt

Home > Produkte > Zählerschränke > Zählerschranksystem E 950/800 D1

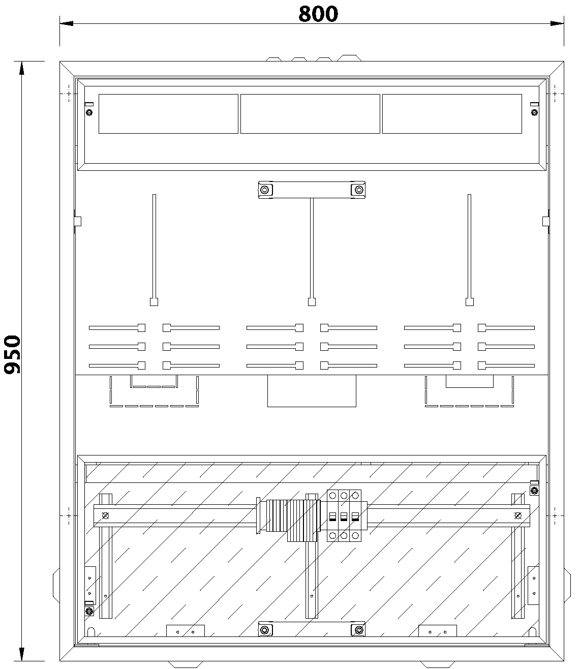
Zählerschranksystem E 950/800 D1

recyclebarer Vollkunststoff ● schutzisoliert ● stabilsteife Bauart 

 

Wandlerzählung

Zählerschrank E 950/800 D1

 

Maße: 950 x 800 x 225 mm

 

• Kabeleinführung: unten 2x Pg 36

  rechts u. links je 1x Pg 36

  oben 3x Pg 16, 1x Pg 21

 

Tür mit Vollsicht-Sicherheitsscheibe

 

Schloss: plombierbarer Knebelverschluss

 

4 Schrauben und Dübel für Schrankbefestigung ø9

 

Gewicht: ca. 13 kg

 

 

Zählertafel E 950/800 D1-H5

 

Maße: 900 x 750 x 25 mm

3 Zählerplätze

 

• komplett anschlussfertig verdrahtet

 

unterer Anschlussraum

• Prüfklemme

• 3 Sicherungsautomaten B10

• transparente, plombierbare Abdeckung

 

oberer Anschlussraum

• Tragschiene 35/7,5

• plombierbare Normfeld-Abdeckung

 

Gewicht: ca. 12 kg

PDF Download
Produktanfrage

Kontakt

Paul Deppe & Co. GmbH

Emmy-Noether-Str. 6 

31157 Sarstedt, Deutschland 

Telefon: (05066) 70 44 0 

Telefax: (05066) 70 44 44 

E-Mail: info{at}deppe.eu

Sitemap

Home

 

Qualität

 

Ausstellungen/Messen

 

Kontakt

 

Impressum

 

Datenschutz

Produkte

Zählerschränke

Wandlermessungen

  • E 700/400 D1
  • E 700/550 D1
  • E 700/750 D1
  • E 950/550 D1
  • E 800/800 D1
  • E 950/800 D1
  • E 2000/800 D1

Direktmessungen

  • D 1100/300-1Z
  • D 1250/300-2Z
  • D 1400/300-2Z

Wandlerschränke

  • E 800/550 D1-W
  • E 800/550 D1-W-TN
  • E 800/800 D1-W

Zählerwandlerschränke

  • E 700/700 D1-ZW
  • E 1100/700 D1-ZW
  • E 1100/950 D1-ZW
  • E 700/950 D1-ZW
  • E 950/800 D1-ZW
  • E 1250/550 D1-ZW
  • E 1250/800 D1-ZW
  • E 1250/1050 D1-ZW

Standverteiler

  • St 2000/820/400 ZW

Außenverteiler

  • A 1100/1115 ZW
  • A 1100/1445 ZW

Zubehör

© 2025 Paul Deppe & Co. GmbH