(05066) 70 44 0

English  

<<   Vertriebsmitarbeiter gesucht! • 13.-15.10.2026 Belektro/Gedatec (https://www.gedatec.berlin/de) - mehr/more >>

Home
  • Products
    • Products
    • Metering cabinets
    • Transformer cabinets
    • Metering transformer cabinets
    • Freestanding distributors
    • Outdoor distributors
    • Accessories
  • Quality
  • Exhibitions
  • Career
  • Contact

Home > Products > Metering cabinets > Metering cabinet system E 700/550 D1

Metering cabinet system E 700/550 D1

Recycleble full plastic ● protective insulation ● sturdy stiff design

 

Transformer metering

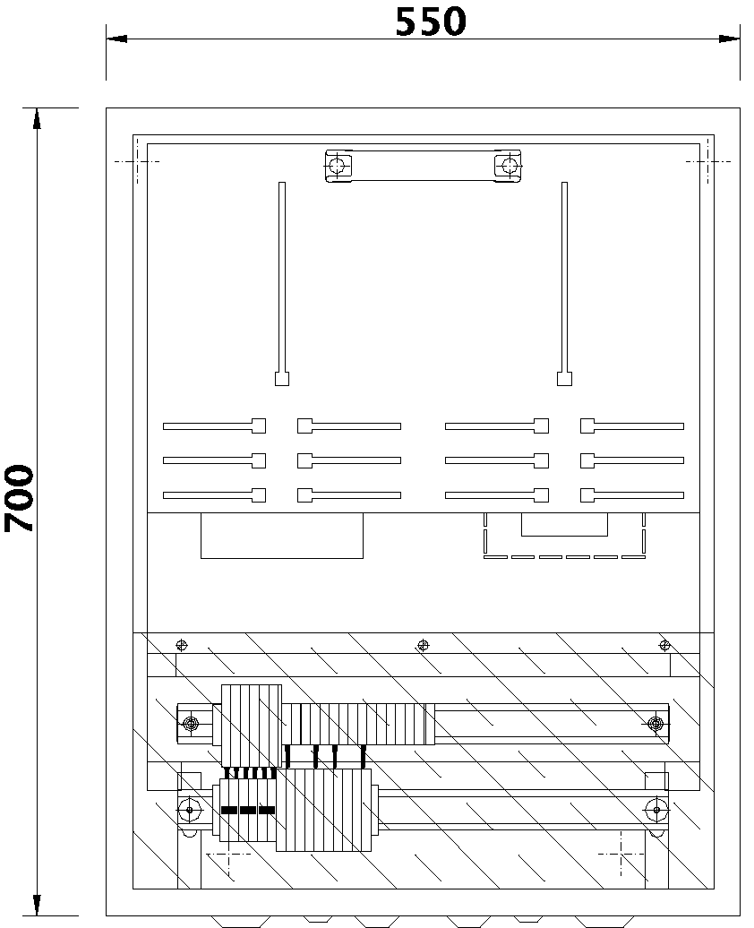
Metering cabinet E 700/550 D1IIL

 

Dimensions: 700 x 550 x 225 mm

 

• Bottom test terminal

• Transparent, sealable terminal compartment cover

 

Wiring in/out: bottom 2x Pg21, 2x Pg29, 2x PG36

 

Door with full-view safety glass

 

Lock: Square-key lock with sealable indicating disk

 

4 screws and plugs to mount cabinet ø9

 

Weight: approx. 8 kg

 

 

Meter board E 700/550 D1-H5-IIL

 

Dimensions: 520 x 450 x 25 mm

 

• 2 meter positions

• Top test terminal

• Completely wired ready to connect

 

Weight: approx. 3 kg

PDF Download
Product inquiry

Contact

Paul Deppe & Co. GmbH

Emmy-Noether-Str. 6 

31157 Sarstedt, Germany 

Telephone: (05066) 70 44 0 

Fax: (05066) 70 44 44 

E-Mail: info{at}deppe.eu

Sitemap

Home

 

Quality

 

Exhibitions

 

Contact

 

Legal

 

Privacy policy

Products

Metering cabinets

Transformer measurements

  • E 700/400 D1
  • E 700/550 D1
  • E 700/750 D1
  • E 950/550 D1
  • E 800/800 D1
  • E 950/800 D1
  • E 2000/800 D1

Direct measurements

  • D 1100/300-1Z
  • D 1250/300-2Z
  • D 1400/300-2Z

Transformer cabinets

  • E 800/550 D1-W
  • E 800/550 D1-W-TN
  • E 800/800 D1-W

Metering transformer cabinets

  • E 700/700 D1-ZW
  • E 1100/700 D1-ZW
  • E 1100/950 D1-ZW
  • E 700/950 D1-ZW
  • E 950/800 D1-ZW
  • E 1250/550 D1-ZW
  • E 1250/800 D1-ZW
  • E 1250/1050 D1-ZW

Freestanding distributors

  • St 2000/820/400 ZW

Outdoor distributors

  • A 1100/1115 ZW
  • A 1100/1445 ZW

Accessories

© 2025 Paul Deppe & Co. GmbH